Superbe appartement 2 chambres proche du Westland Shopping
Description
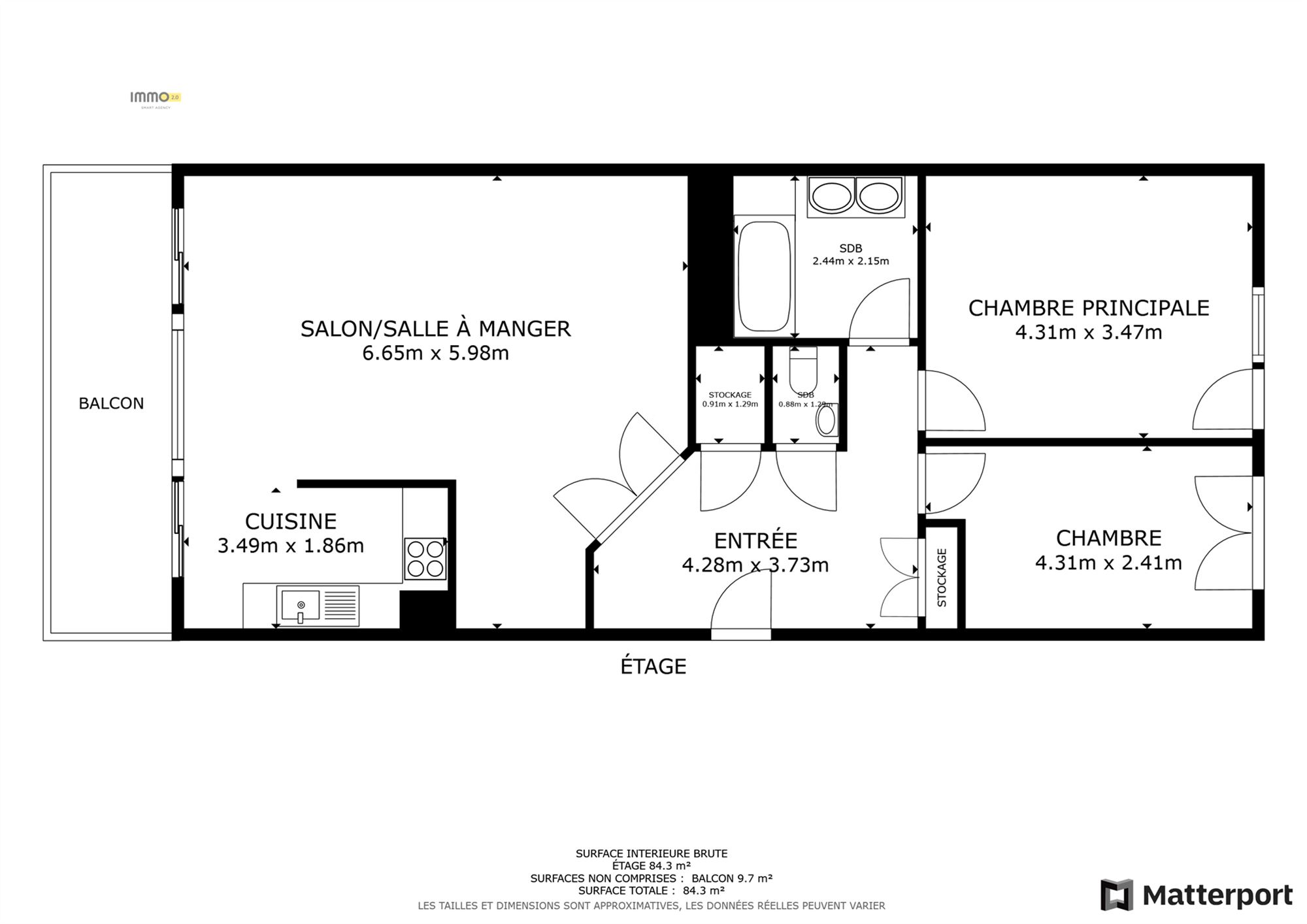
À Anderlecht, sur le dynamique Boulevard Sylvain Dupuis, Immo 2.0 a le plaisir de vous faire découvrir "Lyse", ce superbe appartement deux chambres de 90 m² situé au 5ᵉ étage sur 9 d’un immeuble avec ascenseur. Ce bien lumineux et bien agencé séduit par ses volumes et son confort. Il se compose d’un hall d’entrée, d’un vaste séjour de 40 m² ouvert sur une cuisine équipée, le tout donnant accès à une belle terrasse ensoleillée, parfaite pour vos moments de détente. Côté nuit, deux chambres calmes à l’arrière, une salle de bain, une buanderie pratique et un WC séparé complètent l’ensemble. Une cave privative est également incluse, offrant un espace de rangement supplémentaire
L’emplacement est un véritable atout : à seulement deux minutes du Westland Shopping, proche de l’hôpital Erasme, entouré de commerces, services et parfaitement desservi par les transports en commun, ce bien allie confort et praticité au quotidien. Les petits plus: l'appartement vient d'être rafraîchi et est équipé de nouvelles vannes thermostatiques.
Contactez-nous vite au 02 209 10 70 ou par email : office@immo2-0.com pour organiser une visite !
Infos et photos à titre indicatif et non contractuelles.

Envie d'en savoir plus ?
Prenez contact avec notre équipe au
+32 2 209 1070
Résumé
Détails
Financier
Équipements
Aux alentours
Bâtiment
Énergie
